中古一戸建て
小牧市篠岡1丁目
1899万円
この物件は
197
人の方が見ています
リフォーム済
駐車場2台可
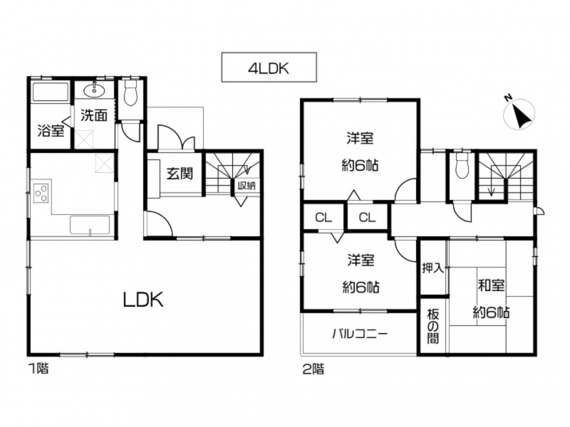
★3LDK
★2025年11月完了予定
水廻り:洗面台交換
内装:クロス張替え、網戸張替え、室内クリーニング、一部建具交換
-周辺施設-
♢桃花台ひまわり幼稚園 徒歩4分(308m)
♢篠岡小学校 徒歩7分(560m)
♢篠岡中学校 徒歩9分(710m)
♢桃花台第3公園 徒歩2分(126m)
♢ピエスタ小牧店 徒歩11分(831m)
♢MEGAドン・キホーテUNY 徒歩8分(617m)
♢小牧桃花台郵便局 徒歩10分(755m)
物件概要
| 所在地 | 小牧市篠岡1丁目 | 価格 | 1,899 万円 |
|---|---|---|---|
| 交通 |
名鉄小牧線 味岡駅 まで 徒歩68分 |
土地権利 | 所有権 |
| 小学校区 | 篠岡 (560m) | 中学校区 | 篠岡 (710m) |
| 間取り | 3LDK | 築年数 |
1986年(昭和61)3
月
築39年 |
| 土地面積 | 公簿 150.14㎡(45.41坪) | 建物面積 | 103.21㎡ (31.22坪) |
| 地目 | 宅地 | 私道負担 | |
| 都市計画 | 市街化区域 | 用途地域 | 1種低層 |
| 建ぺい率 | 60% | 容積率 | 100% |
| 上水道 | 公共 | 下水道 | 公共 |
| ガス | 現況 | 空 | |
| 構造 | 軽量鉄骨造 地上2階建 | 駐車場 | |
| 取引態様 | 仲介 | 明渡 | 即時 |
| 設備・条件 | システムキッチン、食器洗浄乾燥機、IHクッキングヒーター、オール電化、洗浄便座、浴室乾燥機、追い焚き、モニタ付インターホン、駐車場2台分、トイレ2箇所、太陽光発電システム | ||
| 備考 |
2025年11月完了予定 水廻り:洗面台交換 内装:クロス張替え、網戸張替え、室内クリーニング、一部建具交換 |
||
弊社では、売主様に配慮し、物件所在地を掲載していない物件がございます。
詳細については、お気軽にお問合せください。
(物件番号: 3002971)
【更新年月日】2025年11月21日
【次回更新日】2025年12月21日
